Den här webbplatsen använder cookies, som samlar information om hur du interagerar med sidan. I kombination med de uppgifter du uppger, skapar vi en profil så att vi ska kunna visa relevant innehåll just för dig. Genom att acceptera tillåter du att vi samlar och behandlar dina personuppgifter enligt beskrivningen.
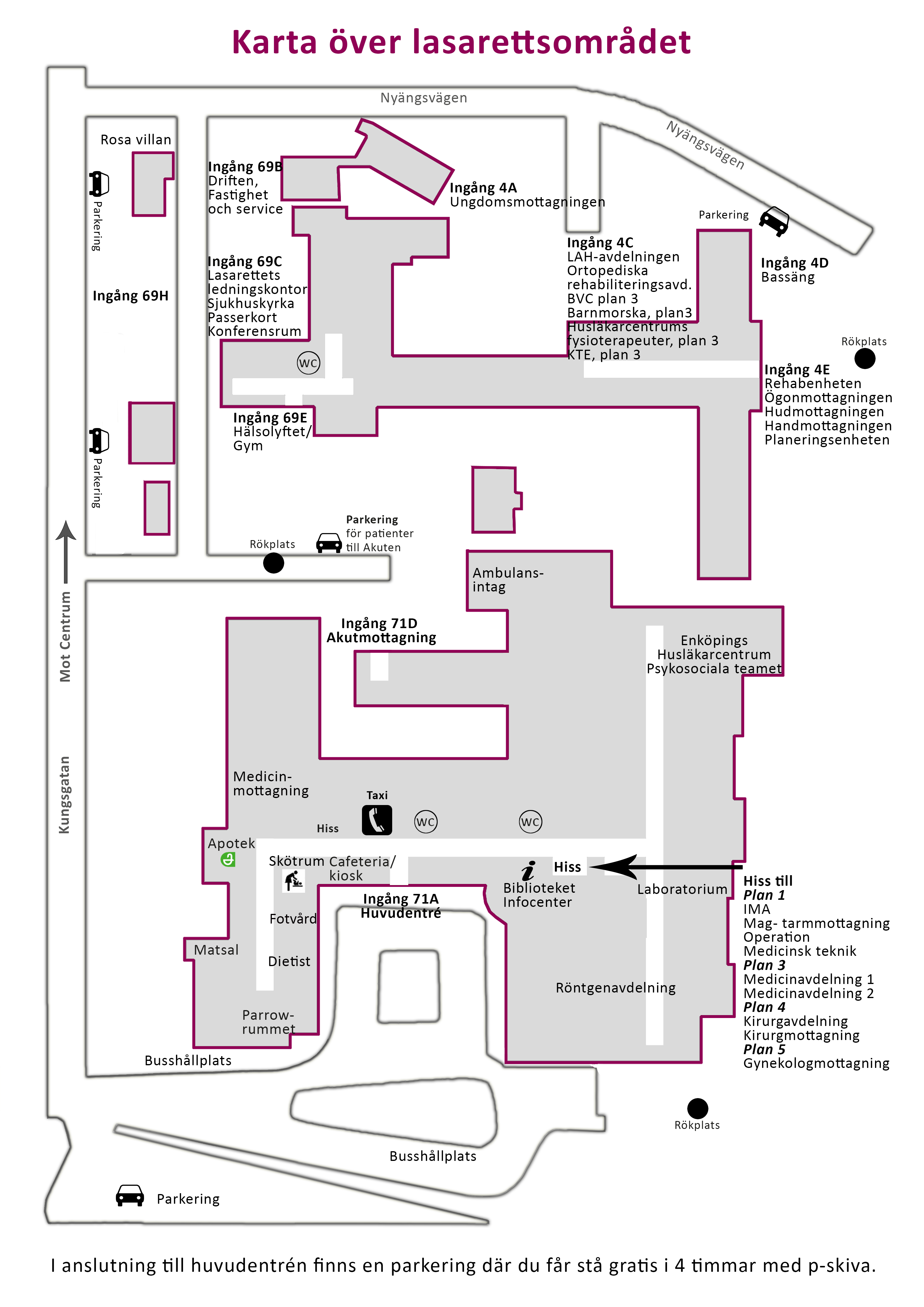
Hitta till och på Lasarettet i Enköping
Hitta till Lasarettet i Enköping
Adress och koordinater
Lasarettet i Enköping finns på adressen Kungsgatan 69–71 samt Nyängsvägen 4C och 4E.
Geografiska koordinater RT90: X:6612807,Y:1571348.